- Domů ›
- Nábytkové kování ›
- Blum nábytkové kování ›
- Box systémy ›
- Legrabox ›
- Sady ›
- Klasická zásuvka ›
- 70 kg ›
- Orion šedá ›
- Legrabox 500 F SET Orion šedá, Blumotion...
Legrabox 500 F SET Orion šedá, Blumotion nebo TOB 70kg
- Méně než 10 sada
- Více variant
Výrobce Blum Více od výrobce Blum Kód produktu 11834 Kód výrobce LBX500F TOB O/70 Záruční doba doživotní záruka
Pro nákup produktu se prosím přihlašte
Skladová dostupnost na pobočkách
- úzké bočnice
- úndividuální design LEGRABOX dokonale odpovídá aktuálním trendům v oblasti bydlení a nabízí široké možnosti
- boční stěny jsou z vnitřní i vnější strany rovné a působivě tenké – mají pouhých 12,8 mm. Jsou tak harmonicky sladěné s ostatními částmi nábytku
- bočnice uvnitř i zvenčí rovná pro maximální využití prostoru s těsně přiléhající krytkou
- synchronizovaný lehký chod díky korpusové liště s ozubenými kolečky
- plynulý dotah díky systému BLUMOTION, který zpomaluje od začátku do konce tudíž nedojde k rozházení věcí v zásuvce
- jedna S kolejnice s Blumotion/tlumením s možností TOB (Blumotion s fukncí TIP-ON jednotku pro otevírání push/otevření dotykem) nebo SERVO-DRIVE
- bočnice z oceli v barvách: Hedvábně bílá matná, Karbonově černá matná, Nerezová s úpravou proti otiskům prstů a Orion šedá matná (tmavě šedá)
Videa a návody:
https://www.youtube.com/c/BLUM%C4%8CR
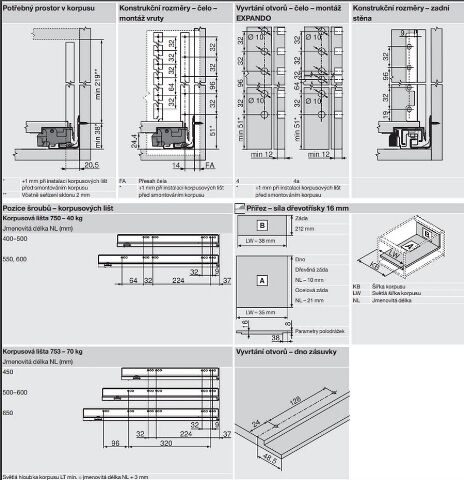
Technický popis:
- výška F - 239,9 mm
- minimální potřebný prostor: 257 mm
- pohyb výsuvu: Blumotion nebo TIP-ON BLUMOTION (tlumený s možností push to open)
- nastavení čela dvěma směry uvnitř bočnice
- montáž čela bez nářadí
- odpovídající systém vnitřního dělení AMBIA-LINE
SADA OBSAHUJE:
- výsuv S Blumotion nebo TIP-ON Blumotion s použitím i pro SERVO-DRIVE P+L
- bočnice LEGRABOX P+L
- držáky zad LEGRABOX P+L
- příchytky čela EXPANDO (s hmoždinkou)
- krytky 2ks
SADA NEOBSAHUJE
- TIP-ON jednotku T60L dále dle zatížení zásuvky
| Kód produktu: | 11834 |
| Kód výrobce: | LBX500F TOB O/70 |
| Záruční doba: | doživotní záruka |
| SET: | SET |
| Šířka: | 0,0 mm |
| Barva: | Orion šedá |
| Nosnost: | 70kg |
| Síla: | 0,0 mm |
| Minimální vnitřní prostor: | 257mm |
| Výška: | F-241mm |
| Délka: | 500mm |
| Typ: | Legrabox |
| Délka: | 0,5 mm |

