- Domů ›
- Nábytkové kování ›
- Kování pro posuvné dveře ›
- Kování pro vestavěné skříně ›
- S35 ›
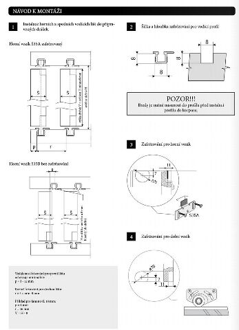
- Vozík S35C
Vozík S35C
Vozík S35C k systému S35 pro posuvné skříňové dveře
| Kód produktu: | DVE35CV |
| Kód výrobce: | 13C0S35C |
| Délka: | 0,0 mm |
| Kování S35: | Kování S35 |
| Šířka: | 0,0 mm |
| Síla: | 0,0 mm |
| Sady koleček: | Kování S35 |

